Проект компактной гардеробной системы

Стоимость аналогичного проекта под ключ: 48 238,9 ₽

Запросить бесплатный 3D-проект

Дорогие клиенты, рады поделиться с вами нашим новым проектом, который мы реализовали в квартире в Москве.

Гардеробная комната каждого человека уникальна, как и их владельцы. Поэтому разработка каждого проекта начинается со следующих действий:
  1. Наши менеджеры получают входящую информацию от клиента о габаритах помещения (обязательно учитываются все помехи на стенах: двери, розетки, провода, трубы и многое другое). Хотим обратить ваше внимание на то, что если вы планируете установку гардеробной системы в Москве или Московской области, то у нас есть услуга профессионального замерщика. Его задачей является снять все размеры помещения и передать эти данные нашим дизайнерам. Так вы сэкономите своё время и можете быть полностью уверены в том, что ваша будущая гардеробная система будет полностью соответствовать габаритам вашего помещения. Более подробно о данной услуге вы можете узнать у наших менеджеров по телефону +7 (499) 755-12-12
  2. Далее наши дизайнеры связываются с клиентом и детально прорабатывают все потребности, чтобы в будущем гардеробная система Gardie приносила только удобство и комфорт.
В данном проекте у клиента было точное понимание того, как он видит свою гардеробную систему, так как перед оформлением заказа он ознакомился с комплектующими, из которых собираются гардеробные системы Gardie, а так же посмотрел ряд выполненых проектов.

Перед нашими дизайнерами было поставлено несколько основных задач:
  1. Предусмотреть место для хранения обуви. Именно поэтому наши дизайнеры установили 2 выдвижных обувницы на 8 пар обуви прямо при входе в гардеробную комнату.
  2. Сделать ряд выдвижных сетчатых корзин разного размера для хранения аксессуаров (шапок, перчаток, шарфов и других мелких предметов).
  3. Предусмотреть штанги, для хранения вещей на плечиках. Наши дизайнеры разместили две штанги, на которые можно разместить большое количество верхней одежды.
  4. Установить одну брючницу для того, чтобы разглаженные джинсы и брюки всегда имели опрятный вид.
  5. И конечно же, в данном проекте хотелось добавить несколько аксессуаров для гардеробных систем, которые сделают гардеробную систему ещё более удобной: разделитель проволочной полки, боковой лоток для кронштейна.

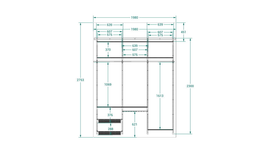
На согласование клиенту был отправлен следующий макет:


Далее мы согласовали проект и подтвердили дату доставки и монтажа, которая подходила клиенту.

Спустя два дня мы провели монтаж и сдали проект. 
Клиент остался доволен результатом, а мы пополнили портфолио наших готовых проектов.

Понравился проект? Закажите бесплатный 3D-проект для своего помещения!

Стоимость аналогичного проекта под ключ: 48 238,9 ₽

Запросить бесплатный 3D-проект