• Готовые проекты

    Галерея проектов под ключ

    Смотреть
  • 3D-проект

    Бесплатный дизайн-проект помещения

    Получить

Проект гардеробной комнаты для двоих

Стоимость аналогичного проекта под ключ: 44 248,4 ₽

Запросить бесплатный 3D-проект

Дорогие клиенты, рады поделиться с Вами нашим новым проектом, который мы реализовали в квартире Москвы. Это удобная система хранения на двоих, созданная на базе оборудования популярного бренда.

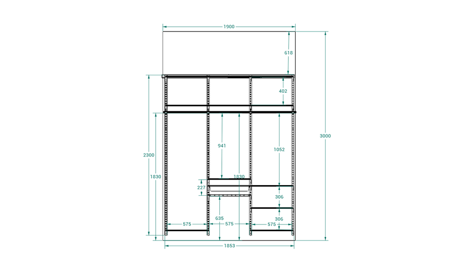
К нам обратился клиент после ремонта с желанием полностью обустроить свою гардеробную комнату системами хранения GARDIE. При этом изначально была поставлена задача сделать удобную гардеробную на двоих, что означает функциональное разделение системы хранения на два отдела, находящиеся в едином пространстве. Реализация такой идеи возможно благодаря грамотному размещению полок, корзин и других элементов гардеробной комнаты.

Перед созданием каждого проекта нашим дизайнерам необходимо получить точные размеры помещения и помех на стенах. В данной ситуации клиент самостоятельно снял все замеры и прислал нам. В любом случае мы всегда тесно взаимодействуем с клиентами, предлагая им разные идеи систем хранения и обсуждая, какой они хотят видеть гардеробную комнату.


1. На первичном этапе основываясь на всех пожеланиях клиента мы получаем следующий макет, который отправляем на согласование:



В данном проекте наши дизайнеры предусмотрели несколько ключевых моментов, на которые клиент обратил внимание:

  • Проволочные полки, на которых будет удобно хранить повседневные аксессуары и верхний ряд полок для удобного хранения вещей в органайзерах. 
  • Несколько сетчатых корзин для хранения различных мелких вещей. Помимо того, что корзины позволяют удобно расположить аксессуары и другие предметы, они имеют и другое большое преимущество – в них не собирается пыль и грязь. Так ваши вещи остаются чистыми намного дольше.
  • Предусмотреть место для хранения джинс и брюк. Именно поэтому наши дизайнеры предложили установить в данный проект выдвижную брючницу.
  • Установить длинную штангу для хранения вещей на плечиках.

2. Наши дизайнеры учли все пожелания клиента и то, сколько свободного пространства есть для организации гардеробной комнаты. Поэтому проект был быстро утвержден. После составления проекта мы согласовали его с клиентом и назначили дату доставки и монтажа.

3. Спустя два дня мы провели монтаж и сдали готовый проект. В итоге клиент получил именно такую гардеробную комнату, какую он хотел.
Он остался доволен результатом, а мы пополнили портфолио наших готовых проектов.

Понравился проект? Закажите бесплатный 3D-проект для своего помещения!

Стоимость аналогичного проекта под ключ: 44 248,4 ₽

Запросить бесплатный 3D-проект