Стоимость аналогичного проекта под ключ: 86 285 ₽
Запросить бесплатный 3D-проект
Дорогие клиенты, рады поделиться с вами нашим новым проектом, который мы реализовали в квартире в Москве.
⠀
Так как помещение, выделенное под гардеробную систему, находится прямо около входной двери, то нашим дизайнерам необходимо было создать универсальный проект, включающий в себя:
⠀
1) Достаточное количество проволочных полок для хранения вещей в сложенном состоянии или в органайзерах. Как вы можете видеть, в данном проекте полки расположены по всей высоте системы. А на правой стене верхняя полка установлена таким образом, чтобы она не перекрывала доступ к электрическому счётчику.
⠀
2) Несколько рядов сетчатых корзин разного размера.
⠀
3) Штанги, для хранения вещей на плечиках.
4) Тумбу ЛДСП для комфортного хранения особо мелких аксессуаров.
5) По правой стороне установлено большой количество различных аксессуаров, где можно комфортно хранить повседневные куртки, зонты, средства и различные губки для обуви и многое другое. Используемые аксессуары: вешалка на 4 крючка, модуль для навесок, Лоток 283х115 мм, Лоток 283х39 мм, Крючки 3х, Подвес по проволочную полку.
6) Выдвижной лоток для аксессуров, где удобно хранить ключи, очки и другие мелкие предметы.
7) Полку-корзину для комфортного хранения шапок, перчаток и других аксессуаров.
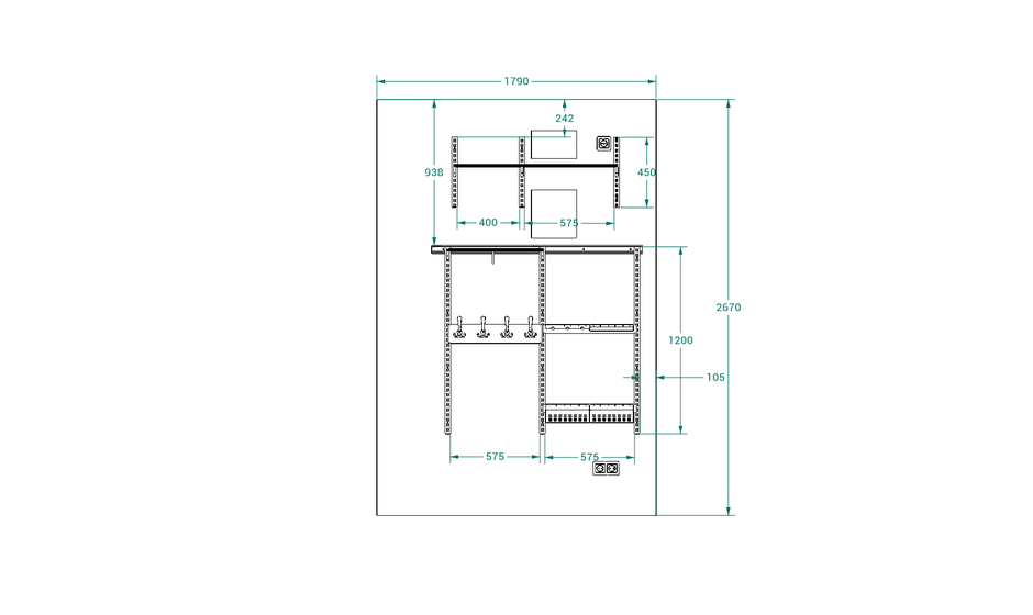
На согласование клиенту был отправлен следующий макет:
После того, как наши дизайнеры закончили отрисовку макета, мы согласовали его с клиентом и в комфортное для него время осуществили доставку всех комплектующих.
Спустя два дня мы провели монтаж и сдали готовый проект.
⠀
Так как помещение, выделенное под гардеробную систему, находится прямо около входной двери, то нашим дизайнерам необходимо было создать универсальный проект, включающий в себя:
⠀
1) Достаточное количество проволочных полок для хранения вещей в сложенном состоянии или в органайзерах. Как вы можете видеть, в данном проекте полки расположены по всей высоте системы. А на правой стене верхняя полка установлена таким образом, чтобы она не перекрывала доступ к электрическому счётчику.
⠀
2) Несколько рядов сетчатых корзин разного размера.
⠀
3) Штанги, для хранения вещей на плечиках.
4) Тумбу ЛДСП для комфортного хранения особо мелких аксессуаров.
5) По правой стороне установлено большой количество различных аксессуаров, где можно комфортно хранить повседневные куртки, зонты, средства и различные губки для обуви и многое другое. Используемые аксессуары: вешалка на 4 крючка, модуль для навесок, Лоток 283х115 мм, Лоток 283х39 мм, Крючки 3х, Подвес по проволочную полку.
6) Выдвижной лоток для аксессуров, где удобно хранить ключи, очки и другие мелкие предметы.
7) Полку-корзину для комфортного хранения шапок, перчаток и других аксессуаров.
На согласование клиенту был отправлен следующий макет:
После того, как наши дизайнеры закончили отрисовку макета, мы согласовали его с клиентом и в комфортное для него время осуществили доставку всех комплектующих.
Спустя два дня мы провели монтаж и сдали готовый проект.
Понравился проект? Закажите бесплатный 3D-проект для своего помещения!
Стоимость аналогичного проекта под ключ: 86 285 ₽
Запросить бесплатный 3D-проект